Пример расчета и конструирования сплошной колонны
Страница 4

Подкрановая часть колонны

Размеры прямоугольного сечения:

b2=0,5 м=500мм; h2=0,8 м=800мм; а = а′ =0,04=40мм; h0=0.8-0.04=0.76 м=760мм.

Расчетная длина

l0=1.5 H2=1.5·8.15=12.22.

Подбор сечений продольной арматуры производят по максимальным усилиям, действующим в сечениях.

Расчет в плоскости поперечной рамы

От полной нагрузки

М= -249,6 кН·м; N=1530.0 кН;

от всех нагрузок, но без учета ветровой и крановой

М′= 46,2 кН·м; N′=884,1 кН.

Вычисляют моменты внешних усилий относительно центра тяжести сечения арматуры соответственно с учетом и без учета ветровой нагрузки:

|MI|<0.82 |MII|=272,1 кН·м<0.82·800,4=616,3 кН·м.

Так как условие (2) выполнено, принимают γb2=1.1 и Rb=9.35 МПа.

Ввиду того, что сечение ΙV-ΙV расположено у заделки колонны, η=1.

Величина эксцентриситета:

℮0=249,6/1530,0=0,163;

℮=0,178·1+0,5·0,8-0,04=0,523 м=523мм.

По формуле (53) определяют относительную величину продольной силы

Так как

где

то по формуле (54)

,

По формуле (57) площадь арматуры

Минимально необходимое армирование подкрановой части в зависимости от гибкости

l0/ h2= 12,22/0,8 = 15,28 <24,

тогда

As=A′s=0,002·b2·h0=0,002·500·760=760 мм2=7,6 см2.

Принимают по 4Ø16 A-III с каждой стороны (As=A′s=8,04 см2).

Аналогично производят подбор арматуры и на другое невыгодное сочетание усилий: M=293,8 кН·м; N= 1437,2 кН; M′=21,8 кН·м; N′= 791,3 кН; As=A′s<0, следовательно, продольную арматуру устанавливают конструктивно.

Расчет из плоскости поперечной рамы

Расчетная длина

: l*0 = 0,8Н2= 0,8·8, 15=6,52 м.

Поскольку

l*0 /h2= 6,52/0,5 = 13,04 м < l0/h*2 = 12,22/0,8 = 15,28

гибкость в плоскости изгиба, расчет из плоскости поперечной рамы не выполняют. Поперечную арматуру в подкрановой части устанавливают конструктивно, так как площадь поперечного сечения подкрановой части больше, чем надкрановой.

Расчет подкрановой консоли

Размеры консоли принимают с учетом конструктивных требований и из условия опирания и крепления подкрановых балок. Тогда

hk =1,45 м; b=0,5м; а = а' = 0,04 м; - h.0к= 1,41 м; lc=0,55; ac = 0,2 м.

Сечение подкрановой консоли рассчитывают от действия нагрузок: от веса подкрановой балки и подкранового рельса 138,7 кН и вертикальной крановой нагрузки 733,6 кН. Тогда Qс =138,7+733,6=872,3 кН.

Проверяют принятые размеры консоли в опорном сечении по формулам (103) и (104):

Qc=872300 Н<0,75(1+0)(1-200/1410)9,35·500·340 =1023000 Н,

а также

Qc= 872300 Н < 2, 5·0,83·500·1410 = 1462000 Н.

Следовательно, размеры достаточны. Поперечное армирование консоли принимают в соответствии с конструктивными требованиями. Прочность бетона на смятие по формуле (105)

Прочность бетона на смятие обеспечена.

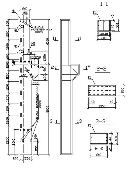
Рисунок 1 – Опалубочный чертеж и армирование колонны

Рисунок 2 – Арматурный пространственный каркас К-1

Определяют площадь сечения продольной арматуры, принимая одинаковое её количество в растянутой и сжатой зонах. При этом изгибающий момент у грани колонны

Мс= 872300·200 = 174460000 Н·мм;

Страницы: 1 2 3 4 5

Определение расчетных расходов воды на пожаротушение
Населенный пункт: так как водопровод в поселке проектируется объединенным, то при количестве жителей 28000 человек принимаем два одновременных пожара при трех этажной застройки с расходом воды 25 л/с на один пожар Qпоспож.нар. = 2•25=50 л/c Расчет воды на внутреннее пожаротушение в поселке при наличии пра ...

Конструктивная характеристика основных конструктивных элементов здания
В современном индустриальном строительстве применяют в основном сборные железобетонные каркасы, конструктивные элементы которых типизированы. Для производственных зданий характерны значительные параметры сетки колонн и высоты помещения. Стены Вертикальные наружные ограждения промышленных зданий компонуютс ...

Расчет теплопоступлений от освещения и отопительных приборов, а также теплопотерь в режиме вентиляции и кондиционирования воздуха для помещения в общественном здании
Помещение № 2 (актовый зал на 66 мест) Искусственное освещение. где FПЛ – площадь пола помещения, м²; коэффициент hосв равен 1, если светильники находятся непосредственно в помещении, и 0,45 – если светильники располагаются в вентилируемом подвесном потолке. FПЛ = 100.08 м² (площадь пола) Е ...

Главное меню


Copyright © 2026 - All Rights Reserved - www.smartarchitect.ru